Lot 9a, Tom Curry's Point | $879,000 | MLS# 65976
Taryn Hinsey Agent Photo
Taryn
Hinsey
KIKIVARAKIS & CO.
No. 10 Caves Professional Cen.
Caves Village,
Bahamas
MLS# 65976

Details

%
Years (35 year max)
Years



Address Lot 9a, Tom Curry's Point
AreaAbaco
Sub AreaLittle Harbour
CountryBahamas
Price$879,000
Property TypeSingle Family Home
Bedrooms2
Bathrooms2
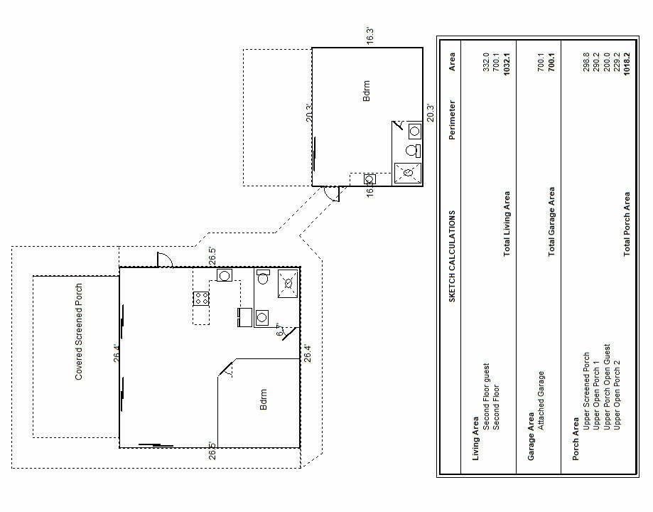
Floor Space1032 Square Feet
Lot Size1.42 Acres
Year Built2005
ParkingGarage - Single
MLS® #65976

With mesmerizing views of The Bight of Old Robinson, this elevated, cozy 2-bed, 2-bath, pod-style waterfront home in the friendly community of Little Harbour is on the market for the first time ever. Built in 2005 and then expanded in 2015, the estate blends comfort, functionality, and self-sufficiency in a spectacular island setting. With around 160 feet of shoreline, there is a small boat ramp and small boat basin right at the back door, perfect for outdoor adventures of all kinds. A relaxing paddle or an exciting fly-fishing hunt are some of the probable adventures to enjoy daily. The property looks out over the East Abaco Creeks National Park - a haven for birdwatching, marine life, and peaceful paddling adventures. The main part of the home has a bedroom and a full bathroom with a generous screened porch overlooking the sea. The guest bdrm pod has a full bathroom, a built-in kitchenette, and a wet bar. Offering 1,032 SF of air-conditioned living space over a 700 SF garage and workshop, including furniture and appliances.


Listing Courtesy of the Bahamas MLS


Location

Use two fingers to move the map
Street View Satellite
Use two fingers to scroll demographics
Data Source: Statistics Canada
THE DATA PROVIDED SHOULD BE USED AS A GUIDE ONLY. FOR UP TO DATE REFERENCE MATERIAL, CONSULT WITH INDIVIDUAL REGIONAL WEBSITES.
(click to close)

Virtual Tour

Virtual Tour allows you to walk through the property in 3d

View Virtual Tour